第35回:エンティティ変換の注意点
みなさまがよく使用されているエンティティ変換ですが、角度が付いている平面では注意が必要です。
今回は、エンティティ変換の注意点について説明します。

【操作手順】
1.新規に部品ファイルを開きます。
2.【正面】をクリックして、スケッチタブの【スケッチ】をクリックします。
3.スケッチタブの【矩形中心】をクリックします。

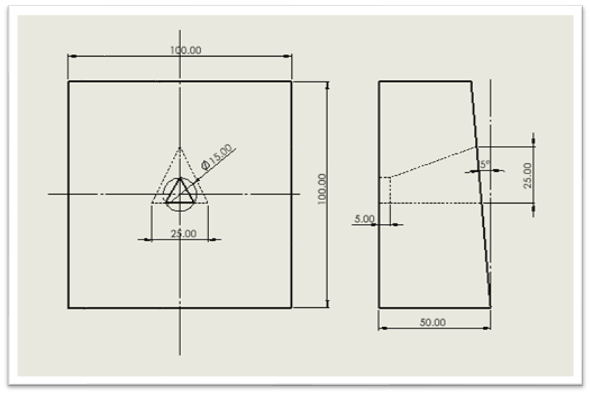
4.原点をクリックして、右斜め上の適当な位置をクリックして、四角形を作図します。

5.スケッチタブの【スマート寸法】をクリックし、長さ【100mm】の寸法を拘束を付けます。

6.フィーチャータブの【押し出し ボス/ベース】をクリックします。

7.【押し出し方向】を反対(Z-方向)にして、深さ/厚みに【50mm】を入力し、【OK】をクリックします。

8.【正面】にスケッチを開始します。
9.スケッチタブの【多角形】をクリックします。

10.側面の数を【3】にして、【外接円】を選択し、原点をクリックして、適当な位置をクリックし、作図します。

11.【ESC】キーを押下して、コマンドをキャンセルします。
12.三角形の横線をクリックして、【水平】の拘束を付けます。

13..スケッチタブの【スマート寸法】をクリックして、三角形の外接円の直径に【15mm】の寸法拘束を付けます。

14.フィーチャータブの【押し出しカット】をクリックします。

15.【ブラインド】を選択して、深さ/厚みに【5mm】を入力し、【OK】をクリックします。

16.四角形の側面にスケッチを開始します。
スケッチタブの【直線】で、下図のように作図します。

17.フィーチャータブの【押し出しカット】をクリックします。
【全貫通】にして、下側がカットされるように【反対側をカット】にチェックを入れます。
【OK】をクリックして、下側をカットします。

18.示を【陰線表示】に変更します。

19.【右側面】にスケッチを開始します。
下図のように作図します。
①の図は左の端点が頂点と【一致】、右側の端点が5度の斜めの線と【一致】、【水平】の拘束が付いています。
②の図は左の端点が頂点と【一致】、右側の端点が5度の斜めの線と【一致】、距離が【25mm】の拘束が付いています。

20.背面の5度の面にスケッチを開始します。
ここで、三角形の底辺の直線をエンティティ変換してみましょう。
下図のようになり、20.で水平に作図した直線と交わりません。
これは、エンティティ変換は選択した図形をスケッチ面に対し垂直に投影するためです。

21.エンティティ変換した図形を削除し、下図のように作図します。
スケッチを終了します。

22.フィーチャータブの【ロフトカット】をクリックします。

23.カットされた三角形の面と22.で作図したスケッチを選択します。
頂点が同じ位置になるような位置をクリックしてください。
※対応する点が違う場合は、対応する点をドラッグして、ねじれがないようにしてください。
場合によっては、ガイドカーブを選択します。


24.【OK】をクリックするとカットが行われます。
モデルの完成です。

